54 Franklin

54 Franklin

New York, NY

Located in the heart of Manhattan's prestigious gallery district, this spectacular turn-key gallery space offers an exceptional opportunity for art dealers and collectors alike.

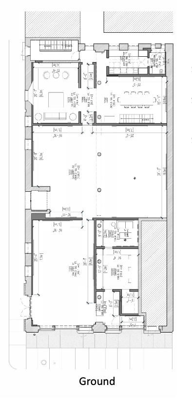
The ground floor showcases a stunning renovation by acclaimed Trimble Architecture, featuring a completely reimagined façade that welcomes visitors into approximately 715 square feet of front gallery space. The impressive main gallery spans 1,364 square feet, complemented by a 324-square-foot rear gallery ideal for private viewings, plus an additional 382-square-foot private viewing and conference room. Professional amenities include a reception area with desk, dedicated office spaces, and a convenient pantry.

The lower level provides essential art handling and storage areas along with two private restrooms. Throughout the space, soaring 13'7" ceilings create an airy, museum-quality atmosphere enhanced by state-of-the-art lighting systems and plywood-backed walls ready for installation. Modern HVAC ensures optimal climate control for valuable works.

With dual entrances on both Franklin Street and Cortlandt Alley, the gallery enjoys the distinguished company of renowned neighbors including Jack Shainman, Artists Space, Almine Rech, Timothy Taylor, Alexander Gray, and R & Company, placing it at the epicenter of contemporary art world activity.

Size: Approx. 5,600 square feet

Amenities

✓ WiFi

✓ Bathroom

✓ Flexible layout

✓ Open floor plan

✓ A/C

✓ Lounge

Previous
Previous

HISTORIC MEATPACKING VAULTED HALL

Next
Next

Gallery 293