FRANK GEHRY BUILDING

Frank Gehry Building

New York, NY

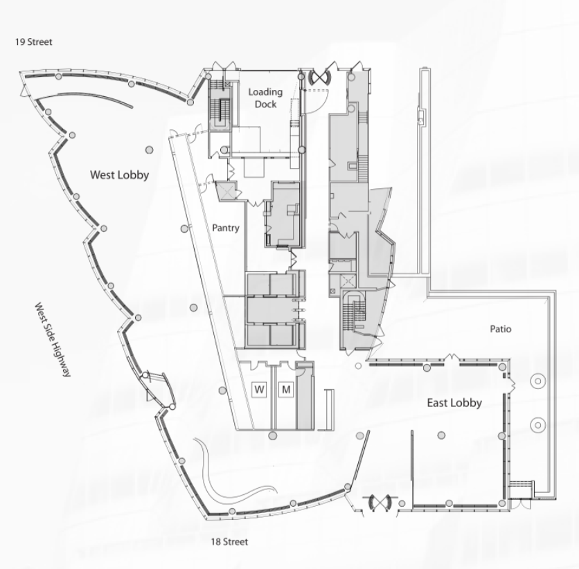
This landmark event space inside IAC’s Frank Gehry‑designed headquarters offers an approximatley 8,500 square feet of indoor and outdoor versatility on Manhattan’s West Side. Soaring floor‑to‑ceiling windows flood the lobby and terrace with natural light while precast pavers, tilted columns and Gehry’s signature curves create a dynamic yet elegant canvas for large events.

At the heart of the venue are two massive LED video walls (120’ × 10’) — among the world’s highest‑resolution direct‑view screens — that support 4K content and immersive media experiences. These walls transform conferences, product launches, galas and receptions into one‑of‑a‑kind spectacles.

Inside you’ll find modular staging and furniture, professional AV and rigging points, an indoor loading dock, catering pantry and Wi‑Fi throughout. Outside, the terrace and patios offer fresh air and skyline views. Our event team has produced everything from live shows and fashion runways to corporate meetings here, and we manage permitting, production and logistics so you can focus on your guests.

Plan your next major activation, premiere or celebration in this iconic space – check available dates and request a custom quote today.

Amenities

✓ Versatile indoor and outdoor spaces

✓ LED Screens

✓ Large-scale capacity

✓ Catering Kitchen

✓ Patio

✓Adaptable layouts

Get in touch about the Frank Gehry Building

Previous
Previous

West Chelsea Art Space

Next
Next

London Terrace Storefront